
La construcción con hormigón prefabricado presenta claras ventajas económicas cuando se fabrican en taller piezas en grandes series. El ahorro en material y en mano de obra, la elevada calidad en el producto y el rápido montaje son razones que justifican, por sí solas, el uso de la construcción prefabricada. Sin embargo, hoy en día existen motivos adicionales basados en beneficios sociales y medioambientales que justifican la adopción de la tecnología del hormigón prefabricado. Asimismo, los proyectistas han tomado buena nota de las ventajas del prefabricado cuando se trata de construir puentes con luces moderadas, de 10 a 50 m. En estos casos, la disminución del peso resulta fundamental para reducir los costes de elevación y transporte de las piezas. En este contexto, la optimización estructural del coste necesario para construir un puente de vigas prefabricadas constituye un área de gran interés,especialmente cuando se realizan grandes series de piezas.
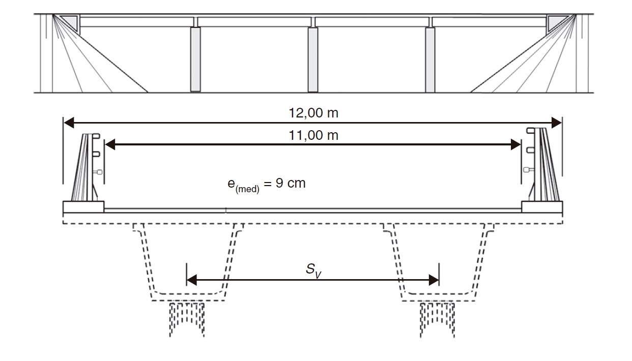
Siguiendo esta línea de trabajo, nuestro grupo de investigación se ha centrado en los últimos años en el diseño automatizado de puentes de vigas artesa prefabricadas de hormigón pretensado (HP) empleados como pasos superiores sobre vías de comunicación. Las luces vienen impuestas por las dimensiones de la vía inferior, con rangos habituales que oscilan entre los 20 y los 40 m. Estos puentes consisten en vigas de HP con forma de U con losa superior colaborante (Figura 2) y un tablero de hormigón, parcialmente prefabricado o construido «in situ». Esta tipología cuenta a su favor, entre otras, con las ventajas derivadas de la prefabricación, como por ejemplo la construcción industrializada, los moldes reutilizables, los plazos reducidos de ejecución en obra y la baja interferencia con el tráfico inferior. La solución de viga en U permite eliminar completamente los poco agraciados cabezales sobre pila de los tableros de viga en doble T.

Resulta interesante comparar la mejor solución alcanzada por alguno de los algoritmos desarrollados por nuestro gruporespecto a una estructura realmente construida y calculada mediante procedimientos habituales. Se han comprobado para casos similares ahorros apreciables en torno al 7-8%. Sin embargo, en algún caso extremo, como el caso del viaducto 1 del tramo Muro de Alcoy-Puerto de Albaida del proyecto de construcción de la autovía del Mediterráneo, el ahorro se ha estimado en un 50% (Martí et al., 2014). En este caso, el puente tenía una luz de 35 m y un ancho de tablero igual al de la solución optimizada, siendo el ahorro alcanzado tan importante a causa de las diferencias en la medición de las unidades de obra en materiales que pueden apreciarse en la Tabla 1.

Resulta evidente que los resultados alcanzados por nuestro grupo de investigación pueden ser de gran interés para su transferencia a las empresas de prefabricados, constructoras y proyectistas. Este diseño automatizado supone un auténtico revulsivo en la forma de entender el proyecto de las estructuras. No obstante, ciertas prácticas comunes como introducir en los proyectos estructuras prefabricadas sobredimensionadas y luego ajustarlas durante la obra (con los consiguientes ahorros para las partes) pueden verse afectadas por este tipo de diseño optimizado. Esta mala praxis puede ser un impedimento para que el diseño optimizado entre a formar parte de la práctica habitual en nuestro sector.
Os dejo a continuación un vídeo del GRUPO BERTOLÍN donde distintos técnicos nos explican las características de los puentes construidos con vigas artesas, sus partes principales y los procesos de ingeniería, mostrando como ejemplo diferentes estructuras en las que Bertolín trabaja actualmente: 4 estructuras en la variante norte de Bétera, acceso a Torrente por el barranco de Chiva, duplicación del puente de Malilla en Valencia y la mejora del acceso de la V30 a la V31.
A continuación os dejo las publicaciones científicas que ha realizado nuestro grupo de investigación al respecto de los puentes de vigas artesa. Estamos, cómo no, en disposición de realizar transferencia tecnológica a las empresas que así nos lo soliciten.
Referencias:
PENADÉS-PLÀ, V.; GARCÍA-SEGURA, T.; MARTÍ, J.V.; YEPES, V. (2018). An optimization-LCA of a prestressed concrete precast bridge. Sustainability, 10(3):685. DOI:10.3390/su10030685
PENADÉS-PLÀ, V.; MARTÍ, J.V.; GARCÍA-SEGURA, T.; YEPES, V. (2017). Life-cycle assessment: A comparison between two optimal post-tensioned concrete box-girder road bridges. Sustainability, 9(10):1864. DOI:10.3390/su9101864
YEPES, V.; MARTÍ, J.V.; GARCÍA-SEGURA, T.; GONZÁLEZ-VIDOSA, F. (2017). Heuristics in optimal detailed design of precast road bridges. Archives of Civil and Mechanical Engineering, 17(4):738-749. DOI:10.1016/j.acme.2017.02.006
YEPES, V.; MARTÍ, J.V.; GARCÍA-SEGURA, T. (2017). Design optimization of precast-prestressed concrete road bridges with steel fiber-reinforcement by a hybrid evolutionary algorithm. International Journal of Computational Methods and Experimental Measurements, 5(2):179-189.
MARTÍ, J.V.; GARCÍA-SEGURA, T.; YEPES, V. (2016). Structural design of precast-prestressed concrete U-beam road bridges based on embodied energy. Journal of Cleaner Production, 120:231-240. DOI:10.1016/j.jclepro.2016.02.024
MARTÍ, J.V.; YEPES, V.; GONZÁLEZ-VIDOSA, F. (2015). Memetic algorithm approach to designing of precast-prestressed concrete road bridges with steel fiber-reinforcement. Journal of Structural Engineering, 141(2): 04014114. DOI:10.1061/(ASCE)ST.1943-541X.0001058
YEPES, V.; MARTÍ, J.V.; GARCÍA-SEGURA, T. (2015). Cost and CO2 emission optimization of precast-prestressed concrete U-beam road bridges by a hybrid glowworm swarm algorithm. Automation in Construction, 49:123-134. DOI:10.1016/j.autcon.2014.10.013
MARTÍ, J.V.; YEPES, V.; GONZÁLEZ-VIDOSA, F.; LUZ, A. (2014). Automated design of prestressed concrete precast road bridges with hybrid memetic algorithms. Revista Internacional de Métodos Numéricos para Cálculo y Diseño en Ingeniería, 30(3), 145-154. DOI:10.1016/j.rimni.2013.04.010
MARTÍ, J.V.; GONZÁLEZ-VIDOSA, F.; YEPES, V.; ALCALÁ, J. (2013). Design of prestressed concrete precast road bridges with hybrid simulated annealing. Engineering Structures, 48:342-352. DOI:10.1016/j.engstruct.2012.09.014

Esta obra está bajo una licencia de Creative Commons Reconocimiento-NoComercial-SinObraDerivada 4.0 Internacional.













